- Паспорт лестница ЛПУ-2,5-4,0-С-Э1.6 Мб, 01 ноября в 07:53
- Габаритный чертеж Лестница ЛПУ178.2 кб, 22 июня в 19:37
- ЛПУ 2500-3600 транспортные габариты168.9 кб, 19 декабря в 21:13
- Сертификат лестница для цистерн серия ЛП239.8 кб, 23 сентября в 02:02
Лестница подкатная ЛП- 2500/4000-02 (ЛП-2500/4000-02)
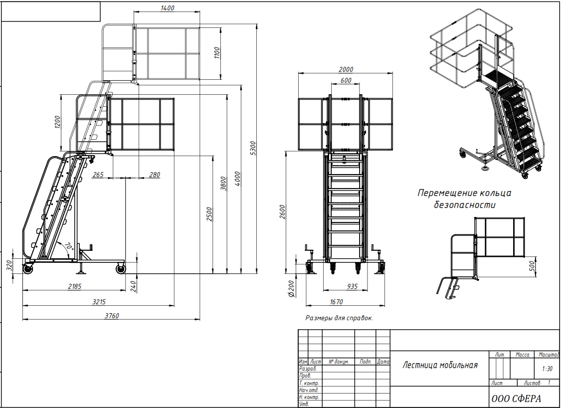
Лестница подкатная передвижная ЛПУ с укороченной базой.
Предназначена для обслуживания автомобильных цистерн различной высоты. Подходит для работы в стесненных условиях за счет уменьшенной площади основания. Лестница позволяет обслуживать цистерны разной высоты. Регулирование высоты зоны обслуживания происходит за счет выдвижной лестницы. Подъем и опускание лестницы осуществляется с помощью барабанной лебедки с тросом. На верхней площадке предусмотрено ограждение для безопасной работы на цистерне. Устойчивость лестницы в рабочем положении обеспечивают регулируемые по высоте винтовые опоры.
Диапазон высот (высота до площадки) – от 2,5 до 4,0 м
Ориентируемые колеса с тормозом – 2 шт
Колеса прямые – 2 шт.
Винтовые опоры – 2 шт.
Материал изготовления - Ст3 или 09Г2С.
Покрытие - грунт+эмаль или горячее цинкование.
Допустимая нагрузка - 150 кг
Вес иделия - 360 кг
Комплектуется
- алюминиевым ограждением - ОГА
- барьерами безопасности ББ
ОГА ББ
Лестница подкатная ЛПУ 2500/4000 с укороченной базой.
- Безопасный доступ персонала на цистерны различных типов благодаря возможности изменять высоту рабочей площадки.
- Диапазон высот обслуживаемых автоцистерн от 2500 до 4000 мм.
- Изменение высоты достигается за счет выдвижной лестницы - трапа.
- Механизм раздвижения - барабанная лебедка с тросом.
- Высокая маневренность.
- Лестница оборудована четырьмя самоориентируемым колесами повышенной прочности.
- Колеса с цельнолитой резиновой шиной, диаметр - 200 мм.
- Регулируемые по высоте винтовые опоры – 2 шт.
- Перила площадки с двух сторон, высота перил - 1100 мм.
- Ступени и площадка выполнены из просечно-вытяжного листа (ПВЛ), предотвращающего скольжение и образование наледи в зимний период.
-
Производство ООО "СФЕРА"
Лестница передвижная ЛПУ 2500/4000-02
Предназначена для обслуживания автоцистерн, взятия отбора проб.
2500 - 4000 мм, высота до площадки.
2500 - 4300 мм, высота обслуживаемых цистерн.
Климатическое исполнение У1 (материал - Сталь 3) или ХЛ1 (материал Сталь 09Г2с).
Покрытие - эмаль или горячее цинкование.
Без кольца безопасности.
Модели:
- Лестница передвижная ЛПУ-2500/4000-Э-02 - покрытие эмаль
- Лестница передвижная ЛПУ-2500/4000-Ц-02 - покрытие цинк
- Лестница передвижная ЛПУ-2500/4000-Э-ХЛ-02 - эмаль, холодный климат
- Лестница передвижная ЛПУ-2500/4000-Ц-ХЛ-02 - цинк, холодный климат
Лестница передвижная ЛПУ-2500/4000-ОГА-02 - с кольцом безопасности
Предназначена для обслуживания автоцистерн, взятия отбора проб.
2500 - 4000 мм, высота площадки.
2500 - 4300 мм, высота обслуживаемых цистерн.
Климатическое исполнение У1 (материал - Сталь 3) или ХЛ1 (материал Сталь 09Г2с).
Покрытие - грунт-эмаль или горячее цинкование.
Кольцо безопасности ОГА -1400 х 2000 х 550. Материал алюминий.
Модели:
- Лестница передвижная ЛПУ-2500/4000-Э-К-02 - эмаль, кольцо
- Лестница передвижная ЛПУ-2500/4000-Ц-К-02 - цинк, кольцо
- Лестница передвижная ЛПУ-2500/4000-Э-ХЛ-К-02 - эмаль, холодный климат, кольцо
- Лестница передвижная ЛПУ-2500/4000-Ц-ХЛ-К-02 - цинк, холодный климат, кольцо
Лестница передвижная ЛПУ-2500/4000-ОГА1100-02 - с высоким кольцом
Предназначена для обслуживания автоцистерн, взятия отбора проб.
2500 - 4000 мм, высота площадки.
2500 - 4300 мм, высота обслуживаемых цистерн.
Климатическое исполнение У1 (материал - Сталь 3) или ХЛ1 (материал Сталь 09Г2с).
Покрытие - эмаль или горячее цинкование.
Кольцо безопасности ОГА 1400 х 2000 х 1100 мм. Материал алюминий.
Модели:
- Лестница передвижная ЛПУ-2500/4000-Э-КП1100-02 - эмаль, кольцо подвижное
- Лестница передвижная ЛПУ-2500/4000-Ц-КП1100-02 - цинк, кольцо подвижное
- Лестница передвижная ЛПУ-2500/4000-Э-ХЛ-КП1100-02 - эмаль, холодный климат, кольцо подвижное
- Лестница передвижная ЛПУ-2500/4000-Ц-ХЛ-КП1100-02 - цинк, холодный климат, кольцо подвижное
Уточнить стоимость и условия поставки, отправьте запрос на 2488805@list.ru
тел 8-800-250-12-27


:format(png)/d077737f11c4d01.ru.s.siteapi.org/img/e5d4e41631d7a5bc94c3fe564e91911991cc2771.jpg)
:format(png)/d077737f11c4d01.ru.s.siteapi.org/img/6c74e8109ed54e2ab07ee2f6d68538c16bf127ba.jpg)
:format(png)/d077737f11c4d01.ru.s.siteapi.org/img/5bfb76a59665634948a4e5fe37f188991d1c4333.jpg)
:format(png)/d077737f11c4d01.ru.s.siteapi.org/img/9a5dfcd1ebe8a023c19420eab246c56ee5ea2a1c.jpg)

Нет комментариев
Добавить комментарий