Рабочая платформа РПА
70100
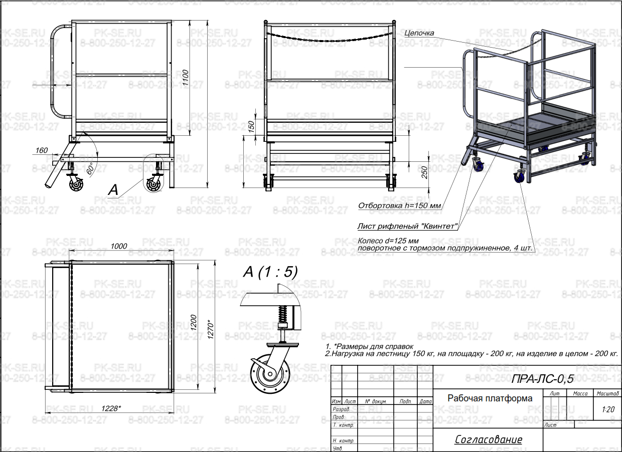
Мобильные и стационарные рабочие платформы РПА
высота площадки от 500 мм и выше;
размер площадки 1000 х 1200 мм;
передвижные на 4 колесах;
стационарные с резиновыми подпятниками;
огороженная площадка ;
проход с площадки по согласованию с заказчиком;
нагрузка 200 кг и выше.
Рабочие платформы РПА - легкие и практичные, используются на производстве и в строительстве, на предприятиях и складах, в логистике и машиностроении.
Мобильные или стационарные
Материал – сварной алюминий


Нет комментариев
Добавить комментарий