- Эскиз - трап с площадкой стационарный89 кб, 18 ноября в 05:51
- Опросный лист - Трап с площадкой стационарный840.9 кб, 18 ноября в 05:46
- Опросный лист - Трап с площадкой стационарный106.7 кб, 18 ноября в 05:46
- Трап с площадкой из алюминия265.9 кб, 11 января в 16:27
- Легкосплавные трапы и переходы KRAUSE каталог421.8 кб, 10 марта в 18:49
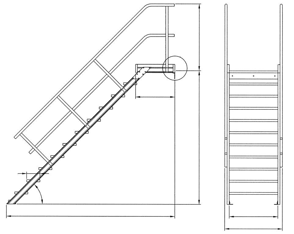
Трап с площадкой алюминиевый стационарный
Алюминиевый трап с платформой - это прочная алюминиевая лестница использыемая для безопасного подхода к дверям или промежуточному междуэтажному уровню и т. п. в соответствии с требованиями EN ISO 14122. "Трап с платформой стационарный. Трап с площадкой из алюминия"
• Стандартная глубина площадки 700 мм
• Ширина ступеней 600 - 800 - 1000 мм
- глубина ступеней 225 мм при угле наклона 45°
- глубина ступеней 175 мм при угле наклона 60°
• Алюминиевые решетчатые или перфорированные ступени по запросу
• Поставка с одним поручнем и перилами (второй поручень и перила, а также фронтальные перила можно приобрести за дополнительную плату)
• При угле наклоналестницы 45° поручни имеют планку на уровне колен
• Для крепления трапа к стене вверху в зоне площадки необходимы треугольные консоли (дополнительная комплектация) или крепежная планка для фронтального крепления

ИЗГОТОВИМ ЛЕСТНИЦУ ПО ВАШИМ РАЗМЕРАМ
• Крепление боковин трапа внизу двумя напольными уголками
• Поставка осуществляется предварительно собранными узлами
• Не допускается применение в качествелестниц в жилых домах в соответствии с DIN 1055 и DIN 18065
• Рекомендация по EN ISO 14122: для обеспечения безопасности предпочтительнее использовать трапы с углом наклона 45°. Трапы с углом наклона 60° применяются только в тех случаях, когда местные условия не позволяют применять другиелестницы
• Трапы с другим углом наклона, шириной ступеней и другой поверхностью можно приобрести по запросу, как специальное исполнение
| УГОЛ ПОДЪЕМА 45 ГРАДУСРОВ | |||
| Артикул | ШИРИНА 600 ММ | Высота утсановки | Длина по полу |
| 824134 | Трап с платформой стационарный 4 ступ., шир. 600 мм 45° | 650 – 860 | 1370 - 1580 |
| 824141 | Трап с платформой стационарный 5 ступ., шир. 600 мм 45° | 860 – 1070 | 1580 - 1790 |
| 824158 | Трап с платформой стационарный 6 ступ., шир. 600 мм 45° | 1070 – 1290 | 1790 - 2010 |
| 824165 | Трап с платформой стационарный 7 ступ., шир. 600 мм 45° | 1290 – 1500 | 2010 - 2220 |
| 824172 | Трап с платформой стационарный 8 ступ., шир. 600 мм 45° | 1500 – 1720 | 2220 - 2440 |
| 824189 | Трап с платформой стационарный 9 ступ., шир. 600 мм 45° | 1720 – 1930 | 2440 - 2650 |
| 824196 | Трап с платформой стационарный 10 ступ., шир. 600 мм 45° | 1930 – 2150 | 2650 - 2870 |
| 824202 | Трап с платформой стационарный 11 ступ., шир. 600 мм 45° | 2150 – 2360 | 2870 - 3080 |
| 824219 | Трап с платформой стационарный 12 ступ., шир. 600 мм 45° | 2360 – 2580 | 3080 - 3300 |
| 824226 | Трап с платформой стационарный 13 ступ., шир. 600 мм 45° | 2580 – 2790 | 3300 - 3510 |
| 824233 | Трап с платформой стационарный 14 ступ., шир. 600 мм 45° | 2790 – 3010 | 3510 - 3730 |
| 824240 | Трап с платформой стационарный 15 ступ., шир. 600 мм 45° | 3010 – 3220 | 3730 - 3940 |
| 824257 | Трап с платформой стационарный 16 ступ., шир. 600 мм 45° | 3220 – 3440 | 3940 - 4160 |
| 824264 | Трап с платформой стационарный 17 ступ., шир. 600 мм 45° | 3440 – 3650 | 4160 - 4390 |
| 824271 | Трап с платформой стационарный 18 ступ., шир. 600 мм 45° | 3650 – 3870 | 4390 - 4590 |
| Артикул | ШИРИНА 800 ММ | Высота утсановки | Длина по полу |
| 824332 | Трап с платформой стационарный 4 ступ., шир. 800 мм 45° | 650 – 860 | 1370 - 1580 |
| 824349 | Трап с платформой стационарный 5 ступ., шир. 800 мм 45° | 860 – 1070 | 1580 - 1790 |
| 824356 | Трап с платформой стационарный 6 ступ., шир. 800 мм 45° | 1070 – 1290 | 1790 - 2010 |
| 824363 | Трап с платформой стационарный 7 ступ., шир. 800 мм 45° | 1290 – 1500 | 2010 - 2220 |
| 824370 | Трап с платформой стационарный 8 ступ., шир. 800 мм 45° | 1500 – 1720 | 2220 - 2440 |
| 824387 | Трап с платформой стационарный 9 ступ., шир. 800 мм 45° | 1720 – 1930 | 2440 - 2650 |
| 824394 | Трап с платформой стационарный 10 ступ., шир. 800 мм 45° | 1930 – 2150 | 2650 - 2870 |
| 824400 | Трап с платформой стационарный 11 ступ., шир. 800 мм 45° | 2150 – 2360 | 2870 - 3080 |
| 824417 | Трап с платформой стационарный 12 ступ., шир. 800 мм 45° | 2360 – 2580 | 3080 - 3300 |
| 824424 | Трап с платформой стационарный 13 ступ., шир. 800 мм 45° | 2580 – 2790 | 3300 - 3510 |
| 824431 | Трап с платформой стационарный 14 ступ., шир. 800 мм 45° | 2790 – 3010 | 3510 - 3730 |
| 824448 | Трап с платформой стационарный 15 ступ., шир. 800 мм 45° | 3010 – 3220 | 3730 - 3940 |
| 824455 | Трап с платформой стационарный 16 ступ., шир. 800 мм 45° | 3220 – 3440 | 3940 - 4160 |
| 824462 | Трап с платформой стационарный 17 ступ., шир. 800 мм 45° | 3440 – 3650 | 4160 - 4390 |
| 824479 | Трап с платформой стационарный 18 ступ., шир. 800 мм 45° | 3650 – 3870 | 4390 - 4590 |
| Артикул | ШИРИНА 1000 ММ | Высота утсановки | Длина по полу |
| 824530 | Трап с платформой стационарный 4 ступ., шир 1000 мм 45° | 650 – 860 | 1370 - 1580 |
| 824547 | Трап с платформой стационарный 5 ступ., шир 1000 мм 45° | 860 – 1070 | 1580 - 1790 |
| 824554 | Трап с платформой стационарный 6 ступ., шир 1000 мм 45° | 1070 – 1290 | 1790 - 2010 |
| 824561 | Трап с платформой стационарный 7 ступ., шир 1000 мм 45° | 1290 – 1500 | 2010 - 2220 |
| 824578 | Трап с платформой стационарный 8 ступ., шир 1000 мм 45° | 1500 – 1720 | 2220 - 2440 |
| 824585 | Трап с платформой стационарный 9 ступ., шир 1000 мм 45° | 1720 – 1930 | 2440 - 2650 |
| 824592 | Трап с платформой стационарный 10 ступ., шир 1000 мм 45° | 1930 – 2150 | 2650 - 2870 |
| 824608 | Трап с платформой стационарный 11 ступ., шир 1000 мм 45° | 2150 – 2360 | 2870 - 3080 |
| 824615 | Трап с платформой стационарный 12 ступ., шир 1000 мм 45° | 2360 – 2580 | 3080 - 3300 |
| 824622 | Трап с платформой стационарный 13 ступ., шир 1000 мм 45° | 2580 – 2790 | 3300 - 3510 |
| 824639 | Трап с платформой стационарный 14 ступ., шир 1000 мм 45° | 2790 – 3010 | 3510 - 3730 |
| 824646 | Трап с платформой стационарный 15 ступ., шир 1000 мм 45° | 3010 – 3220 | 3730 - 3940 |
| 824653 | Трап с платформой стационарный 16 ступ., шир 1000 мм 45° | 3220 – 3440 | 3940 - 4160 |
| 824660 | Трап с платформой стационарный 17 ступ., шир 1000 мм 45° | 3440 – 3650 | 4160 - 4390 |
| 824677 | Трап с платформой стационарный 18 ступ., шир 1000 мм 45° | 3650 – 3870 | 4390 - 4590 |
| 824738 | Второй поручень для трапа с платформой 4 ступ, 45° | ||
| 824745 | Второй поручень для трапа с платформой 5 ступ, 45° | ||
| 824752 | Второй поручень для трапа с платформой 6 ступ, 45° | ||
| 824769 | Второй поручень для трапа с платформой 7 ступ, 45° | ||
| 824776 | Второй поручень для трапа с платформой 8 ступ, 45° | ||
| 824783 | Второй поручень для трапа с платформой 9 ступ, 45° | ||
| 824790 | Второй поручень для трапа с платформой 10 ступ, 45° | ||
| 824806 | Второй поручень для трапа с платформой 11 ступ, 45° | ||
| 824813 | Второй поручень для трапа с платформой 12 ступ, 45° | ||
| 824820 | Второй поручень для трапа с платформой 13 ступ, 45° | ||
| 824837 | Второй поручень для трапа с платформой 14 ступ, 45° | ||
| 824844 | Второй поручень для трапа с платформой 15 ступ, 45° | ||
| 824851 | Второй поручень для трапа с платформой 16 ступ, 45° | ||
| 824868 | Второй поручень для трапа с платформой 17 ступ, 45° | ||
| 824875 | Второй поручень для трапа с платформой 18 ступ, 45° | ||
| УГОЛ ПОДЪЕМА 60 ГРАДУСРОВ | |||
| Артикул | ШИРИНА 600 ММ | Высота утсановки | Длина по полу |
| 824936 | Трап с платформой стационарный 4 ступ., шир. 600 мм 60° | 750 – 1000 | 1170 – 1320 |
| 824943 | Трап с платформой стационарный 5 ступ., шир. 600 мм 60° | 1100 – 1250 | 1320 – 1460 |
| 824950 | Трап с платформой стационарный 6 ступ., шир. 600 мм 60° | 1250 – 1500 | 1460 – 1600 |
| 824967 | Трап с платформой стационарный 7 ступ., шир. 600 мм 60° | 1500 – 1750 | 1610 – 1750 |
| 824974 | Трап с платформой стационарный 8 ступ., шир. 600 мм 60° | 1750 – 2000 | 1750 – 1890 |
| 824981 | Трап с платформой стационарный 9 ступ., шир. 600 мм 60° | 2000 – 2250 | 1890 – 2040 |
| 824998 | Трап с платформой стационарный 10 ступ., шир. 600 мм 60° | 2250 – 2500 | 2040 – 2180 |
| 825001 | Трап с платформой стационарный 11 ступ., шир. 600 мм 60° | 2500 – 2750 | 2180 – 2330 |
| 825018 | Трап с платформой стационарный 12 ступ., шир. 600 мм 60° | 2750 – 3000 | 2330 – 2470 |
| 825025 | Трап с платформой стационарный 13 ступ., шир. 600 мм 60° | 3000 – 3250 | 2470 – 2620 |
| 825032 | Трап с платформой стационарный 14 ступ., шир. 600 мм 60° | 3250 – 3500 | 2620 – 2760 |
| 825049 | Трап с платформой стационарный 15 ступ., шир. 600 мм 60° | 3500– 3750 | 2760 – 2900 |
| 825056 | Трап с платформой стационарный 16 ступ., шир. 600 мм 60° | 3750 – 4000 | 2910 – 3050 |
| 825063 | Трап с платформой стационарный 17 ступ., шир. 600 мм 60° | 4000 – 4250* | 3050 – 3190 |
| 825070 | Трап с платформой стационарный 18 ступ., шир. 600 мм 60° | 4250 – 4500* | 3200 – 3340 |
| Артикул | ШИРИНА 800 ММ | Высота утсановки | Длина по полу |
| 825131 | Трап с платформой стационарный 4 ступ., шир. 800 мм 60° | 750 – 1000 | 1170 – 1320 |
| 825148 | Трап с платформой стационарный 5 ступ., шир. 800 мм 60° | 1100 – 1250 | 1320 – 1460 |
| 825155 | Трап с платформой стационарный 6 ступ., шир. 800 мм 60° | 1250 – 1500 | 1460 – 1600 |
| 825162 | Трап с платформой стационарный 7 ступ., шир. 800 мм 60° | 1500 – 1750 | 1610 – 1750 |
| 825179 | Трап с платформой стационарный 8 ступ., шир. 800 мм 60° | 1750 – 2000 | 1750 – 1890 |
| 825186 | Трап с платформой стационарный 9 ступ., шир. 800 мм 60° | 2000 – 2250 | 1890 – 2040 |
| 825193 | Трап с платформой стационарный 10 ступ., шир. 800 мм 60° | 2250 – 2500 | 2040 – 2180 |
| 825209 | Трап с платформой стационарный 11 ступ., шир. 800 мм 60° | 2500 – 2750 | 2180 – 2330 |
| 825216 | Трап с платформой стационарный 12 ступ., шир. 800 мм 60° | 2750 – 3000 | 2330 – 2470 |
| 825223 | Трап с платформой стационарный 13 ступ., шир. 800 мм 60° | 3000 – 3250 | 2470 – 2620 |
| 825230 | Трап с платформой стационарный 14 ступ., шир. 800 мм 60° | 3250 – 3500 | 2620 – 2760 |
| 825247 | Трап с платформой стационарный 15 ступ., шир. 800 мм 60° | 3500– 3750 | 2760 – 2900 |
| 825254 | Трап с платформой стационарный 16 ступ., шир. 800 мм 60° | 3750 – 4000 | 2910 – 3050 |
| 825261 | Трап с платформой стационарный 17 ступ., шир. 800 мм 60° | 4000 – 4250* | 3050 – 3190 |
| 825278 | Трап с платформой стационарный 18 ступ., шир. 800 мм 60° | 4250 – 4500* | 3200 – 3340 |
| Артикул | ШИРИНА 1000 ММ | Высота утсановки | Длина по полу |
| 825339 | Трап с платформой стационарный 4 ступ., шир. 1000 мм 60° | 750 – 1000 | 1170 – 1320 |
| 825346 | Трап с платформой стационарный 5 ступ., шир. 1000 мм 60° | 1100 – 1250 | 1320 – 1460 |
| 825353 | Трап с платформой стационарный 6 ступ., шир. 1000 мм 60° | 1250 – 1500 | 1460 – 1600 |
| 825360 | Трап с платформой стационарный 7 ступ., шир. 1000 мм 60° | 1500 – 1750 | 1610 – 1750 |
| 825377 | Трап с платформой стационарный 8 ступ., шир. 1000 мм 60° | 1750 – 2000 | 1750 – 1890 |
| 825384 | Трап с платформой стационарный 9 ступ., шир. 1000 мм 60° | 2000 – 2250 | 1890 – 2040 |
| 825391 | Трап с платформой стационарный 10 ступ., шир. 1000 мм 60° | 2250 – 2500 | 2040 – 2180 |
| 825407 | Трап с платформой стационарный 11 ступ., шир. 1000 мм 60° | 2500 – 2750 | 2180 – 2330 |
| 825414 | Трап с платформой стационарный 12 ступ., шир. 1000 мм 60° | 2750 – 3000 | 2330 – 2470 |
| 825421 | Трап с платформой стационарный 13 ступ., шир. 1000 мм 60° | 3000 – 3250 | 2470 – 2620 |
| 825438 | Трап с платформой стационарный 14 ступ., шир. 1000 мм 60° | 3250 – 3500 | 2620 – 2760 |
| 825445 | Трап с платформой стационарный 15 ступ., шир. 1000 мм 60° | 3500– 3750 | 2760 – 2900 |
| 825452 | Трап с платформой стационарный 16 ступ., шир. 1000 мм 60° | 3750 – 4000 | 2910 – 3050 |
| 825469 | Трап с платформой стационарный 17 ступ., шир. 1000 мм 60° | 4000 – 4250* | 3050 – 3190 |
| 825476 | Трап с платформой стационарный 18 ступ., шир. 1000 мм 60° | 4250 – 4500* | 3200 – 3340 |
| 825537 | Второй поручень для трапа 4 ступ. 60° | ||
| 825544 | Второй поручень для трапа 5 ступ. 60° | ||
| 825551 | Второй поручень для трапа 6 ступ. 60° | ||
| 825568 | Второй поручень для трапа 7 ступ. 60° | ||
| 825575 | Второй поручень для трапа 8 ступ. 60° | ||
| 825582 | Второй поручень для трапа 9 ступ. 60° | ||
| 825599 | Второй поручень для трапа 10 ступ. 60° | ||
| 825605 | Второй поручень для трапа 11 ступ. 60° | ||
| 825612 | Второй поручень для трапа 12 ступ. 60° | ||
| 825629 | Второй поручень для трапа 13 ступ. 60° | ||
| 825636 | Второй поручень для трапа 14 ступ. 60° | ||
| 825643 | Второй поручень для трапа 15 ступ. 60° | ||
| 825650 | Второй поручень для трапа 16 ступ. 60° | ||
| 825667 | Второй поручень для трапа 17 ступ. 60° | ||
| 825674 | Второй поручень для трапа 18 ступ. 60° | ||
|
823908 |
Ступени из стали, решетч. 600 мм |
|
|
823915 |
Ступени из стали, решетч. 800 мм |
|
|
823922 |
Ступени из стали, решетч. 1000 мм |
|
|
823939 |
Ступени из стали, дырч. 600 мм |
|
|
823946 |
Ступени из стали, дырч. 800 мм |
|
|
823953 |
Ступени из стали, дырч. 1000 мм |
|
|
825704 |
Удлинение платфорым на 215 мм для 600 мм |
|
|
825711 |
Удлинение платфорым на 215 мм для 800 мм |
|
|
825728 |
Удлинение платфорым на 215 мм для 1000 мм |
|
|
825742 |
Торцевые перила для 600 мм |
|
|
825759 |
Торцевые перила для 800 мм |
|
|
825766 |
Торцевые перила для 1000 мм |
|
|
825773 |
Угловая подпора для 600 мм |
|
|
825780 |
Угловая подпора для 800 мм |
|
|
825797 |
Угловая подпора для 1000 мм |
|
|
825735 |
Удлинение перил на 215 мм |
Уточнить стоимость и условия поставки, отправьте запрос на 2488805@list.ru
тел 8-800-250-12-27
:format(png)/d077737f11c4d01.ru.s.siteapi.org/img/866a07abc09901cb2c57329dcf29b0009932c65f.jpg)
:format(png)/d077737f11c4d01.ru.s.siteapi.org/img/44f008d8663559497d0a5737c56d5504dc51f2d9.jpg)

Нет комментариев
Добавить комментарий