- Площадка обслуживания ПО-3,5-1х1-60-Э с мостиком МП-4А2.8 Мб, 09 сентября в 11:02
- Комплектация площадок обслуживания цистерн365.8 кб, 05 февраля в 19:44
- Установка площадок обслуживания цистерн135.9 кб, 05 февраля в 19:43
- Площадка 2х1, высота 3 метра, мостик мп-4, перемещение 2 метра.715.3 кб, 05 февраля в 19:17
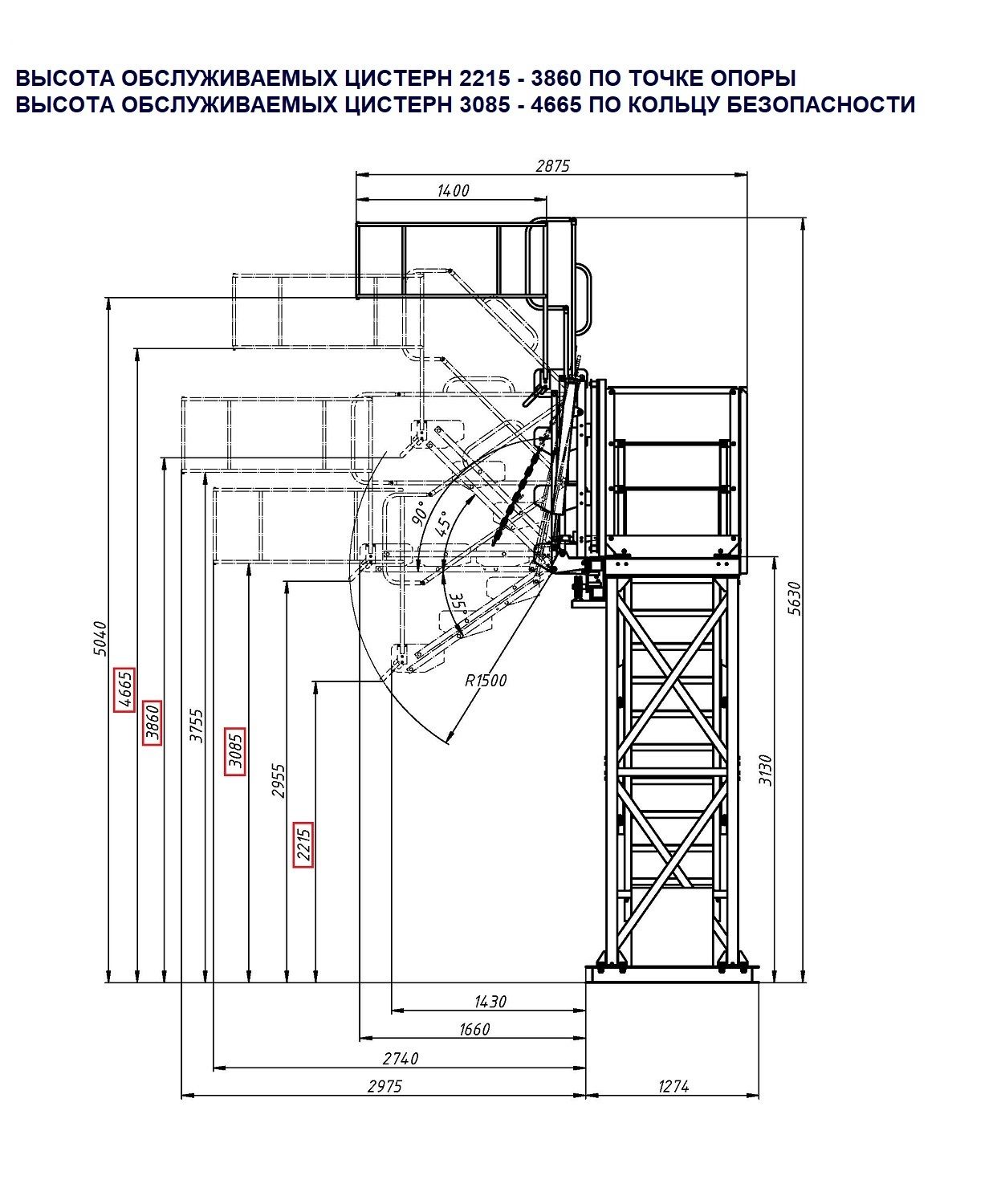
- Диапазон обслуживания цистерн, высота площадки 3 м.196.5 кб, 05 февраля в 19:13
- Площадка обслуживания 1х1х3 образец паспорта1.9 Мб, 05 февраля в 19:11
- Площадка 1х1 метр, высота 3 метра, снование рама, мостик МП-41.7 Мб, 05 февраля в 19:03
Площадка обслуживания цистерн
Площадка обслуживания жд и автоцистерн
Площадка обслуживания автоцистерн
Площадка обслуживания железнодорожных цистерн
Площадки обслуживания автоцистерн и жд цистерн предназначены для обеспечения безопасности и удобства работы обслуживающего персонала с автомобильными и жд цистернами при перегрузке нефтепродуктов. На площадку монтируются один или два переходных мостика, механизмы перемещения в зависимости от комплектации. Калитки и ограждения по согласованию.
Для расчета стоимости площадки обслуживания ПО нужны следующие данные;
- Размер площадки: 1х1 / 2х1 / 3х1 метра или ваш размер.
- Высота площадки: 3 или 4 метра или ваша высота.
- Угол подъема лестницы: 60 или 45 градусов.
- Установка: крепление стоек к фундаменту / крепление на винтовые сваи / рама основания с пригрузом 400 кг (не входит в стоимость).
- Покрытие: Грунт + Эмаль / Цинк / Цинк + порошок
- Крепление мостика (трапа): левое / правое / переднее / с двух сторон
- Климатическое исполнение: У / ХЛ
Производство ООО "СФЕРА"
Изготовим площадки обслуживания по вашим размерам, чертежам или эскизам. Подготовим чертежи, рассчитаем, изготовим, испытаем и поставим заказчику. Возможен монтаж и запуск в работу.
Площадки обслуживания автоцистерн и железнодорожных цистерн предназначены для обеспечения безопасности и удобства работы оператора - наливщика при отпуске нефтепродуктов в автомобильные или жд цистерны. Площадки обслуживания могут применяться для осмотра жд или автоцистерн. Площадки обслуживания обеспечивают максимальную безопасность при подъеме на цистерны. Для обеспечения безопасности применены следующие решения:
- входные лестницы изготавливаются с углом подъема 45° или 60° с безопасными поручнями, отбортовкой по всему периметру лестницы. Конструкция ступеней предотвращает скольжение. Чаще всего настил ступеней и площадки выполнен и ПВЛ (просечка). Глубина ступеней от 200 мм и более, для безопасности и удобства. При угле установки лестницы 45° подъем / спуск оператора более комфортный чем при угле 60°, но требуется больше места для установки площадки.
- трущиеся пары переходных мостов МП, а также узлы соприкасающиеся с авто цистернами изготовлены из материалов, предотвращающих искрообразование. Бронзовые втулки в местах трения. Опорная часть (часть, которая опирается на цистерну) обрезиненная.
- ступени переходных мостов всегда остаются в горизонтальном положении, что обеспечивает максимальное удобство и безопасность при подъеме на ж/д или автоцистерну. Возможна установка прямого переходного мостика МП-П, длина мостика по согласованию с заказчиком.
- барьеры безопасности или круговое ограждение мостиков защищают оператора от падения.
- последняя опорная ступенька оборудована резиновым противоударным бампером для предотвращения искрообразования и повреждения цистерн.
- трущиеся пары мостика, а также узлы, соприкасающиеся с авто цистернами или железнодорожными вагон - цистернами изготовлены из материалов, предотвращающих искрообразование, для обеспечения безопасной работы на объектах, связанных с обращением взрывопожароопасных веществ.
- площадки разборные, поставляются в разобранном виде.
- комплектация страховочными системами.
Для расчета площадки ответь на следующие вопросы:
- Размер площадки: 1х1 / 2х1 / 3х1 метра или ваш размер.
- Высота площадки: 3 или 4 метра или ваша высота. (3м. для авто, 4 м. для жд цистерн)
- Угол подъема лестницы: 60 или 45 градусов.
- Вид установки: крепление стоек к фундаменту / крепление на винтовые сваи / рама основания на которую устанавливается пригруз (фундаментный блок).
- Покрытие: Грунт+Эмаль / Грунт+Эмаль+Порошок / Цинк / Цинк+порошок
- Крепление мостика (трапа): левое / правое / переднее / с двух сторон
- Климатическое исполнение: У (от -45 до +40 С°) / ХЛ (от -60 до +45С°)
- Комплектация площадок: мостик переходной стационарный МП, мостик переходной прямой стационарный МП-П, мостик передвижной с передвижным ограждением, мостик передвижной с калитками безопасности. Механизм продольного перемещения мостиков МПП.
- Комплектация мостиков: барьеры безопасности - ББ / ограждение по периметру 550 мм. / перемещаемое ограждение 1100 мм.
- Нужны ли страховочные системы.
По формированию цены:
- чем меньше размер площадки, тем дешевле.
- чем ниже площадка, тем дешевле.
- угол подъема 60 градусов дешевле чем 45.
- крепление к фундаменту/сваям дешевле, чем рама основания.
Можем изготовить следующие виды площадок
Площадка обслуживания автоцистерн:
- односторонняя
- двухсторонняя
- двухуровневая
Площадка стационарная двухуровневая предназначена для обслуживания на высоте автоцистерн и танк-контейнеров, установленных на контейнеровозе. Площадка используется для пешего подъёма оператора логистических работ, с целью отбора проб и измерений нефтепродуктов из ёмкости.
Площадка применяется для создания максимально безопасных условий труда при выполнении технологических операций. Сооружение состоит из двух опорных горизонтальных площадок, расположенных на разной высоте, двухмаршевой прямолинейной наклонной лестницы и двух перекидных (подъёмных) трапов, которые смонтированы на опорных площадках. Перекидные трапы расположены с противоположных сторон сооружения (правая-левая, по одному на каждой опорной площадке), что обеспечивает двухсторонний доступ к верхней части цистерн.
Площадка обслуживания гидравлическая
(с изменяемой высотой платформы)
Площадка досмотра транспорта
Изделие может использоваться в качестве досмотровой площадки автотранспорта. Досмотровая площадка изготавливается с размерами в зависимости от габаритов транспорта и перевозимых грузов.
Уточнить стоимость и условия поставки, отправьте запрос на 2488805@list.ru тел 8-800-250-12-27


:format(png)/d077737f11c4d01.ru.s.siteapi.org/img/5bfb76a59665634948a4e5fe37f188991d1c4333.jpg)
Нет комментариев
Добавить комментарий